Hickeys Cove is a boutique gated development featuring just 4 bespoke large, A-rated detached homes, each situated on a generous site. 1 property remains available for Sale situated in a quiet enclave off Hickeys Lane which is a prestigious, sought after address on the south side fringe of Ashbourne town – rarely do such opportunities arise with the convenience of a myriad of amenities on its doorstep.
We currently have 2 Hickeys Cove Available reflecting 208.5sq m and a site of approximately 0.30acres.
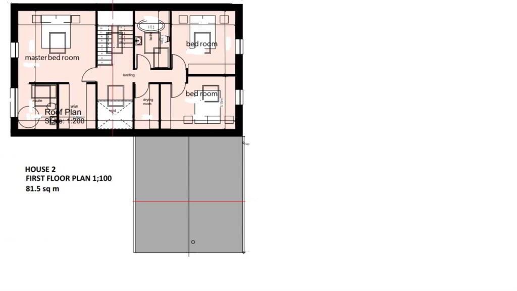
** Images refer to another house within scheme, slightly larger with similar finishes available **
These luxurious homes offer a two house types of 208.5 sq m and 222.5 sq m with considered layouts making them an ideal family home or indeed for any all stages of living. With effective spatial planning and high internal specification throughout these homes offer block built high quality homes of exceptional construction, insulation and finishes with outstanding living bedroom accommodation, stylish bathrooms, ensuites and state of the art kitchens.
Showcasing well proportioned living spaces. The open plan kitchen dining and living space creates a seamless and spacious environment, perfect for both casual family meals and entertaining guests. A separate living room provides a cozy retreat, offering an ideal space to unwind and relax. The master bedroom is complemented by an ensuite and walk in wardrobe space, adding a touch of luxury to daily living. This thoughtfully designed home harmonizes modern functionality with a comfortable and welcoming atmosphere, making it an ideal home for the discerning buyer.
These stunning and elegant homes are currently under construction and anticipated completions from December 2025 to January 2026. Site sizes vary from approx 0.34 acres to 0.39 acres.*NOTE Images and floor plans provided are for reference only and finishes can vary subject to signing of contract*
Superbly located on the fringe of Ashbourne town an abundance of amenities including shops, bars, restaurants, schools, crches, gyms`, parks and sporting facilities. Well serviced by public transport with the Ashbourne Connect Bus Eireann bus stop is just 2 minutes stroll from your doorstep linking both Dublin City Centre Dublin Airport. A short drive to the N2, M50 Motorways Dublin International Airport.
10 Year Homebond Guarantee.
VIEWING IS STRICTLY BY APPOINTMENT WITH GRIMES – ACCESS TO SITE IS NOT PERMITTED UNACCOMPANIED
Directions
Situated just off the R125 Ratoath Road close to the nine mile stone roundabout in the townland of Baltrasna. Nearest Eircode – Opposite subject property on Hickeys Lane – A84 CT93
what3words /// eclipses.bleeps.outdone
Notice
Please note we have not tested any apparatus, fixtures, fittings, or services. Interested parties must undertake their own investigation into the working order of these items. All measurements are approximate and photographs provided for guidance only.
grimes_ActivatedOn : 2025-11-12T14:36:20.4930000+00:00 grimes_Address : 2 Hickeys Cove, Hickeys Lane, Baltrasna grimes_AuctionList : a:0:{} grimes_BathString : 4 baths grimes_Bathrooms : 4 grimes_BedsString : 4 beds grimes_BrightCove : a:0:{} grimes_BrochureContactDetails : a:0:{} grimes_BrochureContent : a:3:{i:0;a:3:{s:11:"ContentType";s:11:"Description";s:9:"SortOrder";i:1;s:7:"Content";s:2965:"Hickeys Cove is a boutique gated development featuring just 4 bespoke large, A-rated detached homes, each situated on a generous site. 1 property remains available for Sale situated in a quiet enclave off Hickeys Lane which is a prestigious, sought after address on the south side fringe of Ashbourne town - rarely do such opportunities arise with the convenience of a myriad of amenities on its doorstep.
We currently have 2 Hickeys Cove Available reflecting 208.5sq m and a site of approximately 0.30acres.
** Images refer to another house within scheme, slightly larger with similar finishes available **
These luxurious homes offer a two house types of 208.5 sq m and 222.5 sq m with considered layouts making them an ideal family home or indeed for any all stages of living. With effective spatial planning and high internal specification throughout these homes offer block built high quality homes of exceptional construction, insulation and finishes with outstanding living bedroom accommodation, stylish bathrooms, ensuites and state of the art kitchens.
Showcasing well proportioned living spaces. The open plan kitchen dining and living space creates a seamless and spacious environment, perfect for both casual family meals and entertaining guests. A separate living room provides a cozy retreat, offering an ideal space to unwind and relax. The master bedroom is complemented by an ensuite and walk in wardrobe space, adding a touch of luxury to daily living. This thoughtfully designed home harmonizes modern functionality with a comfortable and welcoming atmosphere, making it an ideal home for the discerning buyer.
These stunning and elegant homes are currently under construction and anticipated completions from December 2025 to January 2026. Site sizes vary from approx 0.34 acres to 0.39 acres.*NOTE Images and floor plans provided are for reference only and finishes can vary subject to signing of contract*
Superbly located on the fringe of Ashbourne town an abundance of amenities including shops, bars, restaurants, schools, crches, gyms`, parks and sporting facilities. Well serviced by public transport with the Ashbourne Connect Bus Eireann bus stop is just 2 minutes stroll from your doorstep linking both Dublin City Centre Dublin Airport. A short drive to the N2, M50 Motorways Dublin International Airport.
10 Year Homebond Guarantee.
VIEWING IS STRICTLY BY APPOINTMENT WITH GRIMES - ACCESS TO SITE IS NOT PERMITTED UNACCOMPANIED
Directions
Situated just off the R125 Ratoath Road close to the nine mile stone roundabout in the townland of Baltrasna. Nearest Eircode - Opposite subject property on Hickeys Lane - A84 CT93
what3words /// eclipses.bleeps.outdone
Notice
Please note we have not tested any apparatus, fixtures, fittings, or services. Interested parties must undertake their own investigation into the working order of these items. All measurements are approximate and photographs provided for guidance only.";}i:1;a:3:{s:11:"ContentType";s:8:"Features";s:9:"SortOrder";i:1;s:7:"Content";s:765:"Air to Water Heating System, Triple Glazing offering an A rated home
Services incl: Bio Cycle within own site boundary 1m fencing and Well water
Fully Fitted kitchen and island with Quartz countertop and upstands and fitted utility room
Partly Tiled bathrooms & Ensuites with contemporary neutral tones
Internally 2.7m ceiling height with featured vaulted ceiling to kitchen & living space
Modern internal fittings and finished throughout with underfloor heating at ground floor
Generous electrical specification throughout with ducting for EV charge and high speed broadband
Gardens are levelled and seeded, external lighting and tarmac driveways set behind private gates
Optional extras available of patio and flooring
Prices from €975,000. Contact GRIMES today";}i:2;a:3:{s:11:"ContentType";s:10:"Negotiator";s:9:"SortOrder";i:1;s:7:"Content";s:18:"Siobhan O`Sullivan";}} grimes_BrochureMap : a:2:{s:9:"longitude";d:-6.3901465831894;s:8:"latitude";d:53.4953977087757;} grimes_CreatedOnDate : 2025-11-12T14:36:20.4930000+00:00 grimes_CustomData : a:3:{s:12:"HidePostCode";b:0;s:18:"RelatedPropertyIDs";a:0:{}s:16:"IsMyHomePassport";b:0;} grimes_DisplayAddress : 2 Hickeys Cove, Hickeys Lane, Baltrasna, Ashbourne, Meath grimes_Eircode : A84CT93 grimes_EnergyRatingMediaPath : grimes_FloorPlans : a:0:{} grimes_Floors : a:0:{} grimes_GroupId : 5622 grimes_Images : a:27:{i:0;a:4:{s:3:"Url";s:97:"https://photos-a.propertyimages.ie/media/5/8/1/4966185/dad0471e-d8a9-45d9-834b-a30ac8833a52_x.jpg";s:8:"ThumbUrl";s:97:"https://photos-a.propertyimages.ie/media/5/8/1/4966185/dad0471e-d8a9-45d9-834b-a30ac8833a52_t.jpg";s:9:"MediumUrl";s:97:"https://photos-a.propertyimages.ie/media/5/8/1/4966185/dad0471e-d8a9-45d9-834b-a30ac8833a52_m.jpg";s:11:"OriginalUrl";s:103:"https://photos-a.propertyimages.ie/media/5/8/1/4966185/dad0471e-d8a9-45d9-834b-a30ac8833a52_o-83ecf.jpg";}i:1;a:4:{s:3:"Url";s:97:"https://photos-a.propertyimages.ie/media/5/8/1/4966185/70386ba6-b3d5-445b-8f13-a1f083d1c5e7_x.jpg";s:8:"ThumbUrl";s:97:"https://photos-a.propertyimages.ie/media/5/8/1/4966185/70386ba6-b3d5-445b-8f13-a1f083d1c5e7_t.jpg";s:9:"MediumUrl";s:97:"https://photos-a.propertyimages.ie/media/5/8/1/4966185/70386ba6-b3d5-445b-8f13-a1f083d1c5e7_m.jpg";s:11:"OriginalUrl";s:103:"https://photos-a.propertyimages.ie/media/5/8/1/4966185/70386ba6-b3d5-445b-8f13-a1f083d1c5e7_o-e7a60.jpg";}i:2;a:4:{s:3:"Url";s:97:"https://photos-a.propertyimages.ie/media/5/8/1/4966185/5374bc14-353e-4fb1-abb9-fcda79bb71fc_x.jpg";s:8:"ThumbUrl";s:97:"https://photos-a.propertyimages.ie/media/5/8/1/4966185/5374bc14-353e-4fb1-abb9-fcda79bb71fc_t.jpg";s:9:"MediumUrl";s:97:"https://photos-a.propertyimages.ie/media/5/8/1/4966185/5374bc14-353e-4fb1-abb9-fcda79bb71fc_m.jpg";s:11:"OriginalUrl";s:103:"https://photos-a.propertyimages.ie/media/5/8/1/4966185/5374bc14-353e-4fb1-abb9-fcda79bb71fc_o-00bd4.jpg";}i:3;a:4:{s:3:"Url";s:97:"https://photos-a.propertyimages.ie/media/5/8/1/4966185/6c3a2c8e-06b5-4470-aace-faffbf80a216_x.jpg";s:8:"ThumbUrl";s:97:"https://photos-a.propertyimages.ie/media/5/8/1/4966185/6c3a2c8e-06b5-4470-aace-faffbf80a216_t.jpg";s:9:"MediumUrl";s:97:"https://photos-a.propertyimages.ie/media/5/8/1/4966185/6c3a2c8e-06b5-4470-aace-faffbf80a216_m.jpg";s:11:"OriginalUrl";s:103:"https://photos-a.propertyimages.ie/media/5/8/1/4966185/6c3a2c8e-06b5-4470-aace-faffbf80a216_o-5e209.jpg";}i:4;a:4:{s:3:"Url";s:97:"https://photos-a.propertyimages.ie/media/5/8/1/4966185/1310b199-2659-43c2-ac77-85df0c16fcfe_x.jpg";s:8:"ThumbUrl";s:97:"https://photos-a.propertyimages.ie/media/5/8/1/4966185/1310b199-2659-43c2-ac77-85df0c16fcfe_t.jpg";s:9:"MediumUrl";s:97:"https://photos-a.propertyimages.ie/media/5/8/1/4966185/1310b199-2659-43c2-ac77-85df0c16fcfe_m.jpg";s:11:"OriginalUrl";s:103:"https://photos-a.propertyimages.ie/media/5/8/1/4966185/1310b199-2659-43c2-ac77-85df0c16fcfe_o-67f9c.jpg";}i:5;a:4:{s:3:"Url";s:97:"https://photos-a.propertyimages.ie/media/5/8/1/4966185/2ef4a211-1b89-49cc-a138-c5eb68b6ebd9_x.jpg";s:8:"ThumbUrl";s:97:"https://photos-a.propertyimages.ie/media/5/8/1/4966185/2ef4a211-1b89-49cc-a138-c5eb68b6ebd9_t.jpg";s:9:"MediumUrl";s:97:"https://photos-a.propertyimages.ie/media/5/8/1/4966185/2ef4a211-1b89-49cc-a138-c5eb68b6ebd9_m.jpg";s:11:"OriginalUrl";s:103:"https://photos-a.propertyimages.ie/media/5/8/1/4966185/2ef4a211-1b89-49cc-a138-c5eb68b6ebd9_o-b41ef.jpg";}i:6;a:4:{s:3:"Url";s:97:"https://photos-a.propertyimages.ie/media/5/8/1/4966185/ecb7f31f-657c-4a4f-8df6-31be08aef4d0_x.jpg";s:8:"ThumbUrl";s:97:"https://photos-a.propertyimages.ie/media/5/8/1/4966185/ecb7f31f-657c-4a4f-8df6-31be08aef4d0_t.jpg";s:9:"MediumUrl";s:97:"https://photos-a.propertyimages.ie/media/5/8/1/4966185/ecb7f31f-657c-4a4f-8df6-31be08aef4d0_m.jpg";s:11:"OriginalUrl";s:103:"https://photos-a.propertyimages.ie/media/5/8/1/4966185/ecb7f31f-657c-4a4f-8df6-31be08aef4d0_o-668d1.jpg";}i:7;a:4:{s:3:"Url";s:97:"https://photos-a.propertyimages.ie/media/5/8/1/4966185/d1163a59-98b5-4b20-b022-02232051bd42_x.jpg";s:8:"ThumbUrl";s:97:"https://photos-a.propertyimages.ie/media/5/8/1/4966185/d1163a59-98b5-4b20-b022-02232051bd42_t.jpg";s:9:"MediumUrl";s:97:"https://photos-a.propertyimages.ie/media/5/8/1/4966185/d1163a59-98b5-4b20-b022-02232051bd42_m.jpg";s:11:"OriginalUrl";s:103:"https://photos-a.propertyimages.ie/media/5/8/1/4966185/d1163a59-98b5-4b20-b022-02232051bd42_o-3bf85.jpg";}i:8;a:4:{s:3:"Url";s:97:"https://photos-a.propertyimages.ie/media/5/8/1/4966185/0ac5b9e1-8fbc-479d-9de0-7de3c329ba73_x.jpg";s:8:"ThumbUrl";s:97:"https://photos-a.propertyimages.ie/media/5/8/1/4966185/0ac5b9e1-8fbc-479d-9de0-7de3c329ba73_t.jpg";s:9:"MediumUrl";s:97:"https://photos-a.propertyimages.ie/media/5/8/1/4966185/0ac5b9e1-8fbc-479d-9de0-7de3c329ba73_m.jpg";s:11:"OriginalUrl";s:103:"https://photos-a.propertyimages.ie/media/5/8/1/4966185/0ac5b9e1-8fbc-479d-9de0-7de3c329ba73_o-1c8dd.jpg";}i:9;a:4:{s:3:"Url";s:97:"https://photos-a.propertyimages.ie/media/5/8/1/4966185/09dd023e-5d14-4f82-af93-ceada34b06d9_x.jpg";s:8:"ThumbUrl";s:97:"https://photos-a.propertyimages.ie/media/5/8/1/4966185/09dd023e-5d14-4f82-af93-ceada34b06d9_t.jpg";s:9:"MediumUrl";s:97:"https://photos-a.propertyimages.ie/media/5/8/1/4966185/09dd023e-5d14-4f82-af93-ceada34b06d9_m.jpg";s:11:"OriginalUrl";s:103:"https://photos-a.propertyimages.ie/media/5/8/1/4966185/09dd023e-5d14-4f82-af93-ceada34b06d9_o-7e8c3.jpg";}i:10;a:4:{s:3:"Url";s:97:"https://photos-a.propertyimages.ie/media/5/8/1/4966185/5858aabd-5f4e-4702-8339-8a8d79faf95c_x.jpg";s:8:"ThumbUrl";s:97:"https://photos-a.propertyimages.ie/media/5/8/1/4966185/5858aabd-5f4e-4702-8339-8a8d79faf95c_t.jpg";s:9:"MediumUrl";s:97:"https://photos-a.propertyimages.ie/media/5/8/1/4966185/5858aabd-5f4e-4702-8339-8a8d79faf95c_m.jpg";s:11:"OriginalUrl";s:103:"https://photos-a.propertyimages.ie/media/5/8/1/4966185/5858aabd-5f4e-4702-8339-8a8d79faf95c_o-de341.jpg";}i:11;a:4:{s:3:"Url";s:97:"https://photos-a.propertyimages.ie/media/5/8/1/4966185/ed77d58a-388a-4354-b022-7f060831681e_x.jpg";s:8:"ThumbUrl";s:97:"https://photos-a.propertyimages.ie/media/5/8/1/4966185/ed77d58a-388a-4354-b022-7f060831681e_t.jpg";s:9:"MediumUrl";s:97:"https://photos-a.propertyimages.ie/media/5/8/1/4966185/ed77d58a-388a-4354-b022-7f060831681e_m.jpg";s:11:"OriginalUrl";s:103:"https://photos-a.propertyimages.ie/media/5/8/1/4966185/ed77d58a-388a-4354-b022-7f060831681e_o-392ca.jpg";}i:12;a:4:{s:3:"Url";s:97:"https://photos-a.propertyimages.ie/media/5/8/1/4966185/4d759a21-3c0f-4421-89e1-fe1f8c188c4d_x.jpg";s:8:"ThumbUrl";s:97:"https://photos-a.propertyimages.ie/media/5/8/1/4966185/4d759a21-3c0f-4421-89e1-fe1f8c188c4d_t.jpg";s:9:"MediumUrl";s:97:"https://photos-a.propertyimages.ie/media/5/8/1/4966185/4d759a21-3c0f-4421-89e1-fe1f8c188c4d_m.jpg";s:11:"OriginalUrl";s:103:"https://photos-a.propertyimages.ie/media/5/8/1/4966185/4d759a21-3c0f-4421-89e1-fe1f8c188c4d_o-a3011.jpg";}i:13;a:4:{s:3:"Url";s:97:"https://photos-a.propertyimages.ie/media/5/8/1/4966185/d3a60c84-8002-4e66-a5ee-43a72fb48905_x.jpg";s:8:"ThumbUrl";s:97:"https://photos-a.propertyimages.ie/media/5/8/1/4966185/d3a60c84-8002-4e66-a5ee-43a72fb48905_t.jpg";s:9:"MediumUrl";s:97:"https://photos-a.propertyimages.ie/media/5/8/1/4966185/d3a60c84-8002-4e66-a5ee-43a72fb48905_m.jpg";s:11:"OriginalUrl";s:103:"https://photos-a.propertyimages.ie/media/5/8/1/4966185/d3a60c84-8002-4e66-a5ee-43a72fb48905_o-9deb4.jpg";}i:14;a:4:{s:3:"Url";s:97:"https://photos-a.propertyimages.ie/media/5/8/1/4966185/6fe43cb8-2821-48c3-a9c1-84d4b581df7b_x.jpg";s:8:"ThumbUrl";s:97:"https://photos-a.propertyimages.ie/media/5/8/1/4966185/6fe43cb8-2821-48c3-a9c1-84d4b581df7b_t.jpg";s:9:"MediumUrl";s:97:"https://photos-a.propertyimages.ie/media/5/8/1/4966185/6fe43cb8-2821-48c3-a9c1-84d4b581df7b_m.jpg";s:11:"OriginalUrl";s:103:"https://photos-a.propertyimages.ie/media/5/8/1/4966185/6fe43cb8-2821-48c3-a9c1-84d4b581df7b_o-8f73f.jpg";}i:15;a:4:{s:3:"Url";s:97:"https://photos-a.propertyimages.ie/media/5/8/1/4966185/11b81ce1-339c-4fb3-b992-6fc8da6afb4f_x.jpg";s:8:"ThumbUrl";s:97:"https://photos-a.propertyimages.ie/media/5/8/1/4966185/11b81ce1-339c-4fb3-b992-6fc8da6afb4f_t.jpg";s:9:"MediumUrl";s:97:"https://photos-a.propertyimages.ie/media/5/8/1/4966185/11b81ce1-339c-4fb3-b992-6fc8da6afb4f_m.jpg";s:11:"OriginalUrl";s:103:"https://photos-a.propertyimages.ie/media/5/8/1/4966185/11b81ce1-339c-4fb3-b992-6fc8da6afb4f_o-08adb.jpg";}i:16;a:4:{s:3:"Url";s:97:"https://photos-a.propertyimages.ie/media/5/8/1/4966185/0e4f819d-922e-4262-9225-8bce476f64db_x.jpg";s:8:"ThumbUrl";s:97:"https://photos-a.propertyimages.ie/media/5/8/1/4966185/0e4f819d-922e-4262-9225-8bce476f64db_t.jpg";s:9:"MediumUrl";s:97:"https://photos-a.propertyimages.ie/media/5/8/1/4966185/0e4f819d-922e-4262-9225-8bce476f64db_m.jpg";s:11:"OriginalUrl";s:103:"https://photos-a.propertyimages.ie/media/5/8/1/4966185/0e4f819d-922e-4262-9225-8bce476f64db_o-d3139.jpg";}i:17;a:4:{s:3:"Url";s:97:"https://photos-a.propertyimages.ie/media/5/8/1/4966185/0b8dd0a3-7b2c-45ca-b1dd-f04d607e869a_x.jpg";s:8:"ThumbUrl";s:97:"https://photos-a.propertyimages.ie/media/5/8/1/4966185/0b8dd0a3-7b2c-45ca-b1dd-f04d607e869a_t.jpg";s:9:"MediumUrl";s:97:"https://photos-a.propertyimages.ie/media/5/8/1/4966185/0b8dd0a3-7b2c-45ca-b1dd-f04d607e869a_m.jpg";s:11:"OriginalUrl";s:103:"https://photos-a.propertyimages.ie/media/5/8/1/4966185/0b8dd0a3-7b2c-45ca-b1dd-f04d607e869a_o-0a3e4.jpg";}i:18;a:4:{s:3:"Url";s:97:"https://photos-a.propertyimages.ie/media/5/8/1/4966185/17d1e37b-3122-40df-bc84-c719c90505f0_x.jpg";s:8:"ThumbUrl";s:97:"https://photos-a.propertyimages.ie/media/5/8/1/4966185/17d1e37b-3122-40df-bc84-c719c90505f0_t.jpg";s:9:"MediumUrl";s:97:"https://photos-a.propertyimages.ie/media/5/8/1/4966185/17d1e37b-3122-40df-bc84-c719c90505f0_m.jpg";s:11:"OriginalUrl";s:103:"https://photos-a.propertyimages.ie/media/5/8/1/4966185/17d1e37b-3122-40df-bc84-c719c90505f0_o-4e86f.jpg";}i:19;a:4:{s:3:"Url";s:97:"https://photos-a.propertyimages.ie/media/5/8/1/4966185/d0dd261d-015d-49fe-bbd5-079a416129b1_x.jpg";s:8:"ThumbUrl";s:97:"https://photos-a.propertyimages.ie/media/5/8/1/4966185/d0dd261d-015d-49fe-bbd5-079a416129b1_t.jpg";s:9:"MediumUrl";s:97:"https://photos-a.propertyimages.ie/media/5/8/1/4966185/d0dd261d-015d-49fe-bbd5-079a416129b1_m.jpg";s:11:"OriginalUrl";s:103:"https://photos-a.propertyimages.ie/media/5/8/1/4966185/d0dd261d-015d-49fe-bbd5-079a416129b1_o-93baf.jpg";}i:20;a:4:{s:3:"Url";s:97:"https://photos-a.propertyimages.ie/media/5/8/1/4966185/1703eb53-5486-4521-b204-50f5eb200b35_x.jpg";s:8:"ThumbUrl";s:97:"https://photos-a.propertyimages.ie/media/5/8/1/4966185/1703eb53-5486-4521-b204-50f5eb200b35_t.jpg";s:9:"MediumUrl";s:97:"https://photos-a.propertyimages.ie/media/5/8/1/4966185/1703eb53-5486-4521-b204-50f5eb200b35_m.jpg";s:11:"OriginalUrl";s:103:"https://photos-a.propertyimages.ie/media/5/8/1/4966185/1703eb53-5486-4521-b204-50f5eb200b35_o-d7c4f.jpg";}i:21;a:4:{s:3:"Url";s:97:"https://photos-a.propertyimages.ie/media/5/8/1/4966185/6007e4c1-9b63-4d07-a423-5303f44b184c_x.jpg";s:8:"ThumbUrl";s:97:"https://photos-a.propertyimages.ie/media/5/8/1/4966185/6007e4c1-9b63-4d07-a423-5303f44b184c_t.jpg";s:9:"MediumUrl";s:97:"https://photos-a.propertyimages.ie/media/5/8/1/4966185/6007e4c1-9b63-4d07-a423-5303f44b184c_m.jpg";s:11:"OriginalUrl";s:103:"https://photos-a.propertyimages.ie/media/5/8/1/4966185/6007e4c1-9b63-4d07-a423-5303f44b184c_o-8e3d3.jpg";}i:22;a:4:{s:3:"Url";s:97:"https://photos-a.propertyimages.ie/media/5/8/1/4966185/7d6b6080-a95e-4f94-a216-5843330f27cf_x.jpg";s:8:"ThumbUrl";s:97:"https://photos-a.propertyimages.ie/media/5/8/1/4966185/7d6b6080-a95e-4f94-a216-5843330f27cf_t.jpg";s:9:"MediumUrl";s:97:"https://photos-a.propertyimages.ie/media/5/8/1/4966185/7d6b6080-a95e-4f94-a216-5843330f27cf_m.jpg";s:11:"OriginalUrl";s:103:"https://photos-a.propertyimages.ie/media/5/8/1/4966185/7d6b6080-a95e-4f94-a216-5843330f27cf_o-8953a.jpg";}i:23;a:4:{s:3:"Url";s:97:"https://photos-a.propertyimages.ie/media/5/8/1/4966185/cbeac1c8-ebcd-4752-9eed-40baa6240977_x.jpg";s:8:"ThumbUrl";s:97:"https://photos-a.propertyimages.ie/media/5/8/1/4966185/cbeac1c8-ebcd-4752-9eed-40baa6240977_t.jpg";s:9:"MediumUrl";s:97:"https://photos-a.propertyimages.ie/media/5/8/1/4966185/cbeac1c8-ebcd-4752-9eed-40baa6240977_m.jpg";s:11:"OriginalUrl";s:103:"https://photos-a.propertyimages.ie/media/5/8/1/4966185/cbeac1c8-ebcd-4752-9eed-40baa6240977_o-6e52e.jpg";}i:24;a:4:{s:3:"Url";s:97:"https://photos-a.propertyimages.ie/media/5/8/1/4966185/ad0d2099-7921-4100-807e-918febd00ce2_x.jpg";s:8:"ThumbUrl";s:97:"https://photos-a.propertyimages.ie/media/5/8/1/4966185/ad0d2099-7921-4100-807e-918febd00ce2_t.jpg";s:9:"MediumUrl";s:97:"https://photos-a.propertyimages.ie/media/5/8/1/4966185/ad0d2099-7921-4100-807e-918febd00ce2_m.jpg";s:11:"OriginalUrl";s:103:"https://photos-a.propertyimages.ie/media/5/8/1/4966185/ad0d2099-7921-4100-807e-918febd00ce2_o-bed4a.jpg";}i:25;a:4:{s:3:"Url";s:97:"https://photos-a.propertyimages.ie/media/5/8/1/4966185/3a855499-e56b-41cb-97d3-6deeefd59ed0_x.jpg";s:8:"ThumbUrl";s:97:"https://photos-a.propertyimages.ie/media/5/8/1/4966185/3a855499-e56b-41cb-97d3-6deeefd59ed0_t.jpg";s:9:"MediumUrl";s:97:"https://photos-a.propertyimages.ie/media/5/8/1/4966185/3a855499-e56b-41cb-97d3-6deeefd59ed0_m.jpg";s:11:"OriginalUrl";s:103:"https://photos-a.propertyimages.ie/media/5/8/1/4966185/3a855499-e56b-41cb-97d3-6deeefd59ed0_o-2609f.jpg";}i:26;a:4:{s:3:"Url";s:97:"https://photos-a.propertyimages.ie/media/5/8/1/4966185/dc63f667-8708-4cab-ba8e-cfc01e7ade56_x.jpg";s:8:"ThumbUrl";s:97:"https://photos-a.propertyimages.ie/media/5/8/1/4966185/dc63f667-8708-4cab-ba8e-cfc01e7ade56_t.jpg";s:9:"MediumUrl";s:97:"https://photos-a.propertyimages.ie/media/5/8/1/4966185/dc63f667-8708-4cab-ba8e-cfc01e7ade56_m.jpg";s:11:"OriginalUrl";s:103:"https://photos-a.propertyimages.ie/media/5/8/1/4966185/dc63f667-8708-4cab-ba8e-cfc01e7ade56_o-2af22.jpg";}} grimes_IsActive : 1 grimes_IsMappedAccurately : grimes_IsNewBuild : grimes_IsPremiumAd : grimes_IsPrivateLandlord : grimes_IsTopSpot : grimes_IsTransact : grimes_LocalityId : 2714 grimes_MainPhoto : https://photos-a.propertyimages.ie/media/5/8/1/4966185/dad0471e-d8a9-45d9-834b-a30ac8833a52_x.jpg grimes_Matterport : a:0:{} grimes_MaxSize : 208.5 grimes_MinSize : 208.5 grimes_ModifiedOnDate : 2025-11-12T15:22:36.8200000+00:00 grimes_Name : grimes_NegotiatorId : 0 grimes_OpenViewings : a:0:{} grimes_OrderedDisplayAddress : 2 hickeys cove hickeys lane baltrasna ashbourne meath grimes_Pdfs : a:0:{} grimes_PhotoCount : 27 grimes_Photos : a:27:{i:0;s:97:"https://photos-a.propertyimages.ie/media/5/8/1/4966185/dad0471e-d8a9-45d9-834b-a30ac8833a52_x.jpg";i:1;s:97:"https://photos-a.propertyimages.ie/media/5/8/1/4966185/70386ba6-b3d5-445b-8f13-a1f083d1c5e7_x.jpg";i:2;s:97:"https://photos-a.propertyimages.ie/media/5/8/1/4966185/5374bc14-353e-4fb1-abb9-fcda79bb71fc_x.jpg";i:3;s:97:"https://photos-a.propertyimages.ie/media/5/8/1/4966185/6c3a2c8e-06b5-4470-aace-faffbf80a216_x.jpg";i:4;s:97:"https://photos-a.propertyimages.ie/media/5/8/1/4966185/1310b199-2659-43c2-ac77-85df0c16fcfe_x.jpg";i:5;s:97:"https://photos-a.propertyimages.ie/media/5/8/1/4966185/2ef4a211-1b89-49cc-a138-c5eb68b6ebd9_x.jpg";i:6;s:97:"https://photos-a.propertyimages.ie/media/5/8/1/4966185/ecb7f31f-657c-4a4f-8df6-31be08aef4d0_x.jpg";i:7;s:97:"https://photos-a.propertyimages.ie/media/5/8/1/4966185/d1163a59-98b5-4b20-b022-02232051bd42_x.jpg";i:8;s:97:"https://photos-a.propertyimages.ie/media/5/8/1/4966185/0ac5b9e1-8fbc-479d-9de0-7de3c329ba73_x.jpg";i:9;s:97:"https://photos-a.propertyimages.ie/media/5/8/1/4966185/09dd023e-5d14-4f82-af93-ceada34b06d9_x.jpg";i:10;s:97:"https://photos-a.propertyimages.ie/media/5/8/1/4966185/5858aabd-5f4e-4702-8339-8a8d79faf95c_x.jpg";i:11;s:97:"https://photos-a.propertyimages.ie/media/5/8/1/4966185/ed77d58a-388a-4354-b022-7f060831681e_x.jpg";i:12;s:97:"https://photos-a.propertyimages.ie/media/5/8/1/4966185/4d759a21-3c0f-4421-89e1-fe1f8c188c4d_x.jpg";i:13;s:97:"https://photos-a.propertyimages.ie/media/5/8/1/4966185/d3a60c84-8002-4e66-a5ee-43a72fb48905_x.jpg";i:14;s:97:"https://photos-a.propertyimages.ie/media/5/8/1/4966185/6fe43cb8-2821-48c3-a9c1-84d4b581df7b_x.jpg";i:15;s:97:"https://photos-a.propertyimages.ie/media/5/8/1/4966185/11b81ce1-339c-4fb3-b992-6fc8da6afb4f_x.jpg";i:16;s:97:"https://photos-a.propertyimages.ie/media/5/8/1/4966185/0e4f819d-922e-4262-9225-8bce476f64db_x.jpg";i:17;s:97:"https://photos-a.propertyimages.ie/media/5/8/1/4966185/0b8dd0a3-7b2c-45ca-b1dd-f04d607e869a_x.jpg";i:18;s:97:"https://photos-a.propertyimages.ie/media/5/8/1/4966185/17d1e37b-3122-40df-bc84-c719c90505f0_x.jpg";i:19;s:97:"https://photos-a.propertyimages.ie/media/5/8/1/4966185/d0dd261d-015d-49fe-bbd5-079a416129b1_x.jpg";i:20;s:97:"https://photos-a.propertyimages.ie/media/5/8/1/4966185/1703eb53-5486-4521-b204-50f5eb200b35_x.jpg";i:21;s:97:"https://photos-a.propertyimages.ie/media/5/8/1/4966185/6007e4c1-9b63-4d07-a423-5303f44b184c_x.jpg";i:22;s:97:"https://photos-a.propertyimages.ie/media/5/8/1/4966185/7d6b6080-a95e-4f94-a216-5843330f27cf_x.jpg";i:23;s:97:"https://photos-a.propertyimages.ie/media/5/8/1/4966185/cbeac1c8-ebcd-4752-9eed-40baa6240977_x.jpg";i:24;s:97:"https://photos-a.propertyimages.ie/media/5/8/1/4966185/ad0d2099-7921-4100-807e-918febd00ce2_x.jpg";i:25;s:97:"https://photos-a.propertyimages.ie/media/5/8/1/4966185/3a855499-e56b-41cb-97d3-6deeefd59ed0_x.jpg";i:26;s:97:"https://photos-a.propertyimages.ie/media/5/8/1/4966185/dc63f667-8708-4cab-ba8e-cfc01e7ade56_x.jpg";} grimes_Price : a:3:{s:8:"MinPrice";d:975000;s:8:"MaxPrice";d:975000;s:9:"ShowPrice";b:1;} grimes_minprice : 975000 grimes_maxprice : 975000 grimes_PriceAsString : €975,000 grimes_PropertyClassId : 1 grimes_PropertyFeatureTypes : a:1:{i:0;a:5:{s:2:"Id";i:9;s:4:"Name";s:9:"Broadband";s:9:"CreatedOn";s:33:"2018-03-20T10:20:26.7470000+00:00";s:8:"IconName";s:17:"myh-icon-internet";s:13:"IsRequirement";b:0;}} grimes_PropertyId : 4966185 grimes_PropertyStatusId : 2 grimes_PropertyTypeId : 39 grimes_RefreshedOn : 2025-11-12T14:36:20.4930000+00:00 grimes_RegionId : 2712 grimes_Rooms : a:0:{} grimes_SaleTypeId : 17 grimes_SizeStringMeters : 208.5 grimes_Viewett : a:0:{} grimes_Vimeo : a:0:{} grimes_VirtualTourEyeSpy : a:0:{} grimes_VirtualTourKuula : a:0:{} grimes_YouTube : a:0:{} grimes_YouTubeRotate : a:0:{} grimes_VideoUrl : a:0:{} grimes__updated : 1765316710 grimes__alldata : a:84:{s:21:"OrderedDisplayAddress";s:53:"2 hickeys cove hickeys lane baltrasna ashbourne meath";s:7:"GroupId";i:5622;s:7:"Address";s:39:"2 Hickeys Cove, Hickeys Lane, Baltrasna";s:17:"PropertyReference";s:7:"1046127";s:10:"SaleTypeId";i:17;s:9:"MainPhoto";s:97:"https://photos-a.propertyimages.ie/media/5/8/1/4966185/dad0471e-d8a9-45d9-834b-a30ac8833a52_x.jpg";s:6:"Photos";a:27:{i:0;s:97:"https://photos-a.propertyimages.ie/media/5/8/1/4966185/dad0471e-d8a9-45d9-834b-a30ac8833a52_x.jpg";i:1;s:97:"https://photos-a.propertyimages.ie/media/5/8/1/4966185/70386ba6-b3d5-445b-8f13-a1f083d1c5e7_x.jpg";i:2;s:97:"https://photos-a.propertyimages.ie/media/5/8/1/4966185/5374bc14-353e-4fb1-abb9-fcda79bb71fc_x.jpg";i:3;s:97:"https://photos-a.propertyimages.ie/media/5/8/1/4966185/6c3a2c8e-06b5-4470-aace-faffbf80a216_x.jpg";i:4;s:97:"https://photos-a.propertyimages.ie/media/5/8/1/4966185/1310b199-2659-43c2-ac77-85df0c16fcfe_x.jpg";i:5;s:97:"https://photos-a.propertyimages.ie/media/5/8/1/4966185/2ef4a211-1b89-49cc-a138-c5eb68b6ebd9_x.jpg";i:6;s:97:"https://photos-a.propertyimages.ie/media/5/8/1/4966185/ecb7f31f-657c-4a4f-8df6-31be08aef4d0_x.jpg";i:7;s:97:"https://photos-a.propertyimages.ie/media/5/8/1/4966185/d1163a59-98b5-4b20-b022-02232051bd42_x.jpg";i:8;s:97:"https://photos-a.propertyimages.ie/media/5/8/1/4966185/0ac5b9e1-8fbc-479d-9de0-7de3c329ba73_x.jpg";i:9;s:97:"https://photos-a.propertyimages.ie/media/5/8/1/4966185/09dd023e-5d14-4f82-af93-ceada34b06d9_x.jpg";i:10;s:97:"https://photos-a.propertyimages.ie/media/5/8/1/4966185/5858aabd-5f4e-4702-8339-8a8d79faf95c_x.jpg";i:11;s:97:"https://photos-a.propertyimages.ie/media/5/8/1/4966185/ed77d58a-388a-4354-b022-7f060831681e_x.jpg";i:12;s:97:"https://photos-a.propertyimages.ie/media/5/8/1/4966185/4d759a21-3c0f-4421-89e1-fe1f8c188c4d_x.jpg";i:13;s:97:"https://photos-a.propertyimages.ie/media/5/8/1/4966185/d3a60c84-8002-4e66-a5ee-43a72fb48905_x.jpg";i:14;s:97:"https://photos-a.propertyimages.ie/media/5/8/1/4966185/6fe43cb8-2821-48c3-a9c1-84d4b581df7b_x.jpg";i:15;s:97:"https://photos-a.propertyimages.ie/media/5/8/1/4966185/11b81ce1-339c-4fb3-b992-6fc8da6afb4f_x.jpg";i:16;s:97:"https://photos-a.propertyimages.ie/media/5/8/1/4966185/0e4f819d-922e-4262-9225-8bce476f64db_x.jpg";i:17;s:97:"https://photos-a.propertyimages.ie/media/5/8/1/4966185/0b8dd0a3-7b2c-45ca-b1dd-f04d607e869a_x.jpg";i:18;s:97:"https://photos-a.propertyimages.ie/media/5/8/1/4966185/17d1e37b-3122-40df-bc84-c719c90505f0_x.jpg";i:19;s:97:"https://photos-a.propertyimages.ie/media/5/8/1/4966185/d0dd261d-015d-49fe-bbd5-079a416129b1_x.jpg";i:20;s:97:"https://photos-a.propertyimages.ie/media/5/8/1/4966185/1703eb53-5486-4521-b204-50f5eb200b35_x.jpg";i:21;s:97:"https://photos-a.propertyimages.ie/media/5/8/1/4966185/6007e4c1-9b63-4d07-a423-5303f44b184c_x.jpg";i:22;s:97:"https://photos-a.propertyimages.ie/media/5/8/1/4966185/7d6b6080-a95e-4f94-a216-5843330f27cf_x.jpg";i:23;s:97:"https://photos-a.propertyimages.ie/media/5/8/1/4966185/cbeac1c8-ebcd-4752-9eed-40baa6240977_x.jpg";i:24;s:97:"https://photos-a.propertyimages.ie/media/5/8/1/4966185/ad0d2099-7921-4100-807e-918febd00ce2_x.jpg";i:25;s:97:"https://photos-a.propertyimages.ie/media/5/8/1/4966185/3a855499-e56b-41cb-97d3-6deeefd59ed0_x.jpg";i:26;s:97:"https://photos-a.propertyimages.ie/media/5/8/1/4966185/dc63f667-8708-4cab-ba8e-cfc01e7ade56_x.jpg";}s:9:"Bathrooms";i:4;s:7:"MinSize";d:208.5;s:7:"MaxSize";d:208.5;s:12:"OpenViewings";a:0:{}s:20:"PropertyFeatureTypes";a:1:{i:0;a:5:{s:2:"Id";i:9;s:4:"Name";s:9:"Broadband";s:9:"CreatedOn";s:33:"2018-03-20T10:20:26.7470000+00:00";s:8:"IconName";s:17:"myh-icon-internet";s:13:"IsRequirement";b:0;}}s:15:"BrochureContent";a:3:{i:0;a:3:{s:11:"ContentType";s:11:"Description";s:9:"SortOrder";i:1;s:7:"Content";s:2965:"Hickeys Cove is a boutique gated development featuring just 4 bespoke large, A-rated detached homes, each situated on a generous site. 1 property remains available for Sale situated in a quiet enclave off Hickeys Lane which is a prestigious, sought after address on the south side fringe of Ashbourne town - rarely do such opportunities arise with the convenience of a myriad of amenities on its doorstep.
We currently have 2 Hickeys Cove Available reflecting 208.5sq m and a site of approximately 0.30acres.
** Images refer to another house within scheme, slightly larger with similar finishes available **
These luxurious homes offer a two house types of 208.5 sq m and 222.5 sq m with considered layouts making them an ideal family home or indeed for any all stages of living. With effective spatial planning and high internal specification throughout these homes offer block built high quality homes of exceptional construction, insulation and finishes with outstanding living bedroom accommodation, stylish bathrooms, ensuites and state of the art kitchens.
Showcasing well proportioned living spaces. The open plan kitchen dining and living space creates a seamless and spacious environment, perfect for both casual family meals and entertaining guests. A separate living room provides a cozy retreat, offering an ideal space to unwind and relax. The master bedroom is complemented by an ensuite and walk in wardrobe space, adding a touch of luxury to daily living. This thoughtfully designed home harmonizes modern functionality with a comfortable and welcoming atmosphere, making it an ideal home for the discerning buyer.
These stunning and elegant homes are currently under construction and anticipated completions from December 2025 to January 2026. Site sizes vary from approx 0.34 acres to 0.39 acres.*NOTE Images and floor plans provided are for reference only and finishes can vary subject to signing of contract*
Superbly located on the fringe of Ashbourne town an abundance of amenities including shops, bars, restaurants, schools, crches, gyms`, parks and sporting facilities. Well serviced by public transport with the Ashbourne Connect Bus Eireann bus stop is just 2 minutes stroll from your doorstep linking both Dublin City Centre Dublin Airport. A short drive to the N2, M50 Motorways Dublin International Airport.
10 Year Homebond Guarantee.
VIEWING IS STRICTLY BY APPOINTMENT WITH GRIMES - ACCESS TO SITE IS NOT PERMITTED UNACCOMPANIED
Directions
Situated just off the R125 Ratoath Road close to the nine mile stone roundabout in the townland of Baltrasna. Nearest Eircode - Opposite subject property on Hickeys Lane - A84 CT93
what3words /// eclipses.bleeps.outdone
Notice
Please note we have not tested any apparatus, fixtures, fittings, or services. Interested parties must undertake their own investigation into the working order of these items. All measurements are approximate and photographs provided for guidance only.";}i:1;a:3:{s:11:"ContentType";s:8:"Features";s:9:"SortOrder";i:1;s:7:"Content";s:765:"Air to Water Heating System, Triple Glazing offering an A rated home
Services incl: Bio Cycle within own site boundary 1m fencing and Well water
Fully Fitted kitchen and island with Quartz countertop and upstands and fitted utility room
Partly Tiled bathrooms & Ensuites with contemporary neutral tones
Internally 2.7m ceiling height with featured vaulted ceiling to kitchen & living space
Modern internal fittings and finished throughout with underfloor heating at ground floor
Generous electrical specification throughout with ducting for EV charge and high speed broadband
Gardens are levelled and seeded, external lighting and tarmac driveways set behind private gates
Optional extras available of patio and flooring
Prices from €975,000. Contact GRIMES today";}i:2;a:3:{s:11:"ContentType";s:10:"Negotiator";s:9:"SortOrder";i:1;s:7:"Content";s:18:"Siobhan O`Sullivan";}}s:10:"IsNewBuild";b:0;s:6:"Floors";a:0:{}s:5:"Rooms";a:0:{}s:12:"NegotiatorId";i:0;s:13:"CreatedOnDate";s:33:"2025-11-12T14:36:20.4930000+00:00";s:14:"ModifiedOnDate";s:33:"2025-11-12T15:22:36.8200000+00:00";s:11:"IsPremiumAd";b:0;s:11:"ActivatedOn";s:33:"2025-11-12T14:36:20.4930000+00:00";s:11:"RefreshedOn";s:33:"2025-11-12T14:36:20.4930000+00:00";s:9:"IsTopSpot";b:0;s:17:"IsPrivateLandlord";b:0;s:18:"IsMappedAccurately";b:0;s:22:"BrochureContactDetails";a:0:{}s:8:"IsActive";b:1;s:21:"EnergyRatingMediaPath";s:0:"";s:10:"IsTransact";b:0;s:13:"PriceAsString";s:10:"€975,000";s:10:"BathString";s:7:"4 baths";s:11:"AuctionList";a:0:{}s:10:"PropertyId";i:4966185;s:10:"BedsString";s:6:"4 beds";s:16:"SizeStringMeters";d:208.5;s:14:"DisplayAddress";s:57:"2 Hickeys Cove, Hickeys Lane, Baltrasna, Ashbourne, Meath";s:7:"Eircode";s:7:"A84CT93";s:4:"Name";s:0:"";s:15:"PropertyClassId";i:1;s:16:"PropertyStatusId";i:2;s:14:"PropertyTypeId";i:39;s:8:"RegionId";i:2712;s:10:"LocalityId";i:2714;s:5:"Price";a:3:{s:8:"MinPrice";d:975000;s:8:"MaxPrice";d:975000;s:9:"ShowPrice";b:1;}s:6:"Images";a:27:{i:0;a:4:{s:3:"Url";s:97:"https://photos-a.propertyimages.ie/media/5/8/1/4966185/dad0471e-d8a9-45d9-834b-a30ac8833a52_x.jpg";s:8:"ThumbUrl";s:97:"https://photos-a.propertyimages.ie/media/5/8/1/4966185/dad0471e-d8a9-45d9-834b-a30ac8833a52_t.jpg";s:9:"MediumUrl";s:97:"https://photos-a.propertyimages.ie/media/5/8/1/4966185/dad0471e-d8a9-45d9-834b-a30ac8833a52_m.jpg";s:11:"OriginalUrl";s:103:"https://photos-a.propertyimages.ie/media/5/8/1/4966185/dad0471e-d8a9-45d9-834b-a30ac8833a52_o-83ecf.jpg";}i:1;a:4:{s:3:"Url";s:97:"https://photos-a.propertyimages.ie/media/5/8/1/4966185/70386ba6-b3d5-445b-8f13-a1f083d1c5e7_x.jpg";s:8:"ThumbUrl";s:97:"https://photos-a.propertyimages.ie/media/5/8/1/4966185/70386ba6-b3d5-445b-8f13-a1f083d1c5e7_t.jpg";s:9:"MediumUrl";s:97:"https://photos-a.propertyimages.ie/media/5/8/1/4966185/70386ba6-b3d5-445b-8f13-a1f083d1c5e7_m.jpg";s:11:"OriginalUrl";s:103:"https://photos-a.propertyimages.ie/media/5/8/1/4966185/70386ba6-b3d5-445b-8f13-a1f083d1c5e7_o-e7a60.jpg";}i:2;a:4:{s:3:"Url";s:97:"https://photos-a.propertyimages.ie/media/5/8/1/4966185/5374bc14-353e-4fb1-abb9-fcda79bb71fc_x.jpg";s:8:"ThumbUrl";s:97:"https://photos-a.propertyimages.ie/media/5/8/1/4966185/5374bc14-353e-4fb1-abb9-fcda79bb71fc_t.jpg";s:9:"MediumUrl";s:97:"https://photos-a.propertyimages.ie/media/5/8/1/4966185/5374bc14-353e-4fb1-abb9-fcda79bb71fc_m.jpg";s:11:"OriginalUrl";s:103:"https://photos-a.propertyimages.ie/media/5/8/1/4966185/5374bc14-353e-4fb1-abb9-fcda79bb71fc_o-00bd4.jpg";}i:3;a:4:{s:3:"Url";s:97:"https://photos-a.propertyimages.ie/media/5/8/1/4966185/6c3a2c8e-06b5-4470-aace-faffbf80a216_x.jpg";s:8:"ThumbUrl";s:97:"https://photos-a.propertyimages.ie/media/5/8/1/4966185/6c3a2c8e-06b5-4470-aace-faffbf80a216_t.jpg";s:9:"MediumUrl";s:97:"https://photos-a.propertyimages.ie/media/5/8/1/4966185/6c3a2c8e-06b5-4470-aace-faffbf80a216_m.jpg";s:11:"OriginalUrl";s:103:"https://photos-a.propertyimages.ie/media/5/8/1/4966185/6c3a2c8e-06b5-4470-aace-faffbf80a216_o-5e209.jpg";}i:4;a:4:{s:3:"Url";s:97:"https://photos-a.propertyimages.ie/media/5/8/1/4966185/1310b199-2659-43c2-ac77-85df0c16fcfe_x.jpg";s:8:"ThumbUrl";s:97:"https://photos-a.propertyimages.ie/media/5/8/1/4966185/1310b199-2659-43c2-ac77-85df0c16fcfe_t.jpg";s:9:"MediumUrl";s:97:"https://photos-a.propertyimages.ie/media/5/8/1/4966185/1310b199-2659-43c2-ac77-85df0c16fcfe_m.jpg";s:11:"OriginalUrl";s:103:"https://photos-a.propertyimages.ie/media/5/8/1/4966185/1310b199-2659-43c2-ac77-85df0c16fcfe_o-67f9c.jpg";}i:5;a:4:{s:3:"Url";s:97:"https://photos-a.propertyimages.ie/media/5/8/1/4966185/2ef4a211-1b89-49cc-a138-c5eb68b6ebd9_x.jpg";s:8:"ThumbUrl";s:97:"https://photos-a.propertyimages.ie/media/5/8/1/4966185/2ef4a211-1b89-49cc-a138-c5eb68b6ebd9_t.jpg";s:9:"MediumUrl";s:97:"https://photos-a.propertyimages.ie/media/5/8/1/4966185/2ef4a211-1b89-49cc-a138-c5eb68b6ebd9_m.jpg";s:11:"OriginalUrl";s:103:"https://photos-a.propertyimages.ie/media/5/8/1/4966185/2ef4a211-1b89-49cc-a138-c5eb68b6ebd9_o-b41ef.jpg";}i:6;a:4:{s:3:"Url";s:97:"https://photos-a.propertyimages.ie/media/5/8/1/4966185/ecb7f31f-657c-4a4f-8df6-31be08aef4d0_x.jpg";s:8:"ThumbUrl";s:97:"https://photos-a.propertyimages.ie/media/5/8/1/4966185/ecb7f31f-657c-4a4f-8df6-31be08aef4d0_t.jpg";s:9:"MediumUrl";s:97:"https://photos-a.propertyimages.ie/media/5/8/1/4966185/ecb7f31f-657c-4a4f-8df6-31be08aef4d0_m.jpg";s:11:"OriginalUrl";s:103:"https://photos-a.propertyimages.ie/media/5/8/1/4966185/ecb7f31f-657c-4a4f-8df6-31be08aef4d0_o-668d1.jpg";}i:7;a:4:{s:3:"Url";s:97:"https://photos-a.propertyimages.ie/media/5/8/1/4966185/d1163a59-98b5-4b20-b022-02232051bd42_x.jpg";s:8:"ThumbUrl";s:97:"https://photos-a.propertyimages.ie/media/5/8/1/4966185/d1163a59-98b5-4b20-b022-02232051bd42_t.jpg";s:9:"MediumUrl";s:97:"https://photos-a.propertyimages.ie/media/5/8/1/4966185/d1163a59-98b5-4b20-b022-02232051bd42_m.jpg";s:11:"OriginalUrl";s:103:"https://photos-a.propertyimages.ie/media/5/8/1/4966185/d1163a59-98b5-4b20-b022-02232051bd42_o-3bf85.jpg";}i:8;a:4:{s:3:"Url";s:97:"https://photos-a.propertyimages.ie/media/5/8/1/4966185/0ac5b9e1-8fbc-479d-9de0-7de3c329ba73_x.jpg";s:8:"ThumbUrl";s:97:"https://photos-a.propertyimages.ie/media/5/8/1/4966185/0ac5b9e1-8fbc-479d-9de0-7de3c329ba73_t.jpg";s:9:"MediumUrl";s:97:"https://photos-a.propertyimages.ie/media/5/8/1/4966185/0ac5b9e1-8fbc-479d-9de0-7de3c329ba73_m.jpg";s:11:"OriginalUrl";s:103:"https://photos-a.propertyimages.ie/media/5/8/1/4966185/0ac5b9e1-8fbc-479d-9de0-7de3c329ba73_o-1c8dd.jpg";}i:9;a:4:{s:3:"Url";s:97:"https://photos-a.propertyimages.ie/media/5/8/1/4966185/09dd023e-5d14-4f82-af93-ceada34b06d9_x.jpg";s:8:"ThumbUrl";s:97:"https://photos-a.propertyimages.ie/media/5/8/1/4966185/09dd023e-5d14-4f82-af93-ceada34b06d9_t.jpg";s:9:"MediumUrl";s:97:"https://photos-a.propertyimages.ie/media/5/8/1/4966185/09dd023e-5d14-4f82-af93-ceada34b06d9_m.jpg";s:11:"OriginalUrl";s:103:"https://photos-a.propertyimages.ie/media/5/8/1/4966185/09dd023e-5d14-4f82-af93-ceada34b06d9_o-7e8c3.jpg";}i:10;a:4:{s:3:"Url";s:97:"https://photos-a.propertyimages.ie/media/5/8/1/4966185/5858aabd-5f4e-4702-8339-8a8d79faf95c_x.jpg";s:8:"ThumbUrl";s:97:"https://photos-a.propertyimages.ie/media/5/8/1/4966185/5858aabd-5f4e-4702-8339-8a8d79faf95c_t.jpg";s:9:"MediumUrl";s:97:"https://photos-a.propertyimages.ie/media/5/8/1/4966185/5858aabd-5f4e-4702-8339-8a8d79faf95c_m.jpg";s:11:"OriginalUrl";s:103:"https://photos-a.propertyimages.ie/media/5/8/1/4966185/5858aabd-5f4e-4702-8339-8a8d79faf95c_o-de341.jpg";}i:11;a:4:{s:3:"Url";s:97:"https://photos-a.propertyimages.ie/media/5/8/1/4966185/ed77d58a-388a-4354-b022-7f060831681e_x.jpg";s:8:"ThumbUrl";s:97:"https://photos-a.propertyimages.ie/media/5/8/1/4966185/ed77d58a-388a-4354-b022-7f060831681e_t.jpg";s:9:"MediumUrl";s:97:"https://photos-a.propertyimages.ie/media/5/8/1/4966185/ed77d58a-388a-4354-b022-7f060831681e_m.jpg";s:11:"OriginalUrl";s:103:"https://photos-a.propertyimages.ie/media/5/8/1/4966185/ed77d58a-388a-4354-b022-7f060831681e_o-392ca.jpg";}i:12;a:4:{s:3:"Url";s:97:"https://photos-a.propertyimages.ie/media/5/8/1/4966185/4d759a21-3c0f-4421-89e1-fe1f8c188c4d_x.jpg";s:8:"ThumbUrl";s:97:"https://photos-a.propertyimages.ie/media/5/8/1/4966185/4d759a21-3c0f-4421-89e1-fe1f8c188c4d_t.jpg";s:9:"MediumUrl";s:97:"https://photos-a.propertyimages.ie/media/5/8/1/4966185/4d759a21-3c0f-4421-89e1-fe1f8c188c4d_m.jpg";s:11:"OriginalUrl";s:103:"https://photos-a.propertyimages.ie/media/5/8/1/4966185/4d759a21-3c0f-4421-89e1-fe1f8c188c4d_o-a3011.jpg";}i:13;a:4:{s:3:"Url";s:97:"https://photos-a.propertyimages.ie/media/5/8/1/4966185/d3a60c84-8002-4e66-a5ee-43a72fb48905_x.jpg";s:8:"ThumbUrl";s:97:"https://photos-a.propertyimages.ie/media/5/8/1/4966185/d3a60c84-8002-4e66-a5ee-43a72fb48905_t.jpg";s:9:"MediumUrl";s:97:"https://photos-a.propertyimages.ie/media/5/8/1/4966185/d3a60c84-8002-4e66-a5ee-43a72fb48905_m.jpg";s:11:"OriginalUrl";s:103:"https://photos-a.propertyimages.ie/media/5/8/1/4966185/d3a60c84-8002-4e66-a5ee-43a72fb48905_o-9deb4.jpg";}i:14;a:4:{s:3:"Url";s:97:"https://photos-a.propertyimages.ie/media/5/8/1/4966185/6fe43cb8-2821-48c3-a9c1-84d4b581df7b_x.jpg";s:8:"ThumbUrl";s:97:"https://photos-a.propertyimages.ie/media/5/8/1/4966185/6fe43cb8-2821-48c3-a9c1-84d4b581df7b_t.jpg";s:9:"MediumUrl";s:97:"https://photos-a.propertyimages.ie/media/5/8/1/4966185/6fe43cb8-2821-48c3-a9c1-84d4b581df7b_m.jpg";s:11:"OriginalUrl";s:103:"https://photos-a.propertyimages.ie/media/5/8/1/4966185/6fe43cb8-2821-48c3-a9c1-84d4b581df7b_o-8f73f.jpg";}i:15;a:4:{s:3:"Url";s:97:"https://photos-a.propertyimages.ie/media/5/8/1/4966185/11b81ce1-339c-4fb3-b992-6fc8da6afb4f_x.jpg";s:8:"ThumbUrl";s:97:"https://photos-a.propertyimages.ie/media/5/8/1/4966185/11b81ce1-339c-4fb3-b992-6fc8da6afb4f_t.jpg";s:9:"MediumUrl";s:97:"https://photos-a.propertyimages.ie/media/5/8/1/4966185/11b81ce1-339c-4fb3-b992-6fc8da6afb4f_m.jpg";s:11:"OriginalUrl";s:103:"https://photos-a.propertyimages.ie/media/5/8/1/4966185/11b81ce1-339c-4fb3-b992-6fc8da6afb4f_o-08adb.jpg";}i:16;a:4:{s:3:"Url";s:97:"https://photos-a.propertyimages.ie/media/5/8/1/4966185/0e4f819d-922e-4262-9225-8bce476f64db_x.jpg";s:8:"ThumbUrl";s:97:"https://photos-a.propertyimages.ie/media/5/8/1/4966185/0e4f819d-922e-4262-9225-8bce476f64db_t.jpg";s:9:"MediumUrl";s:97:"https://photos-a.propertyimages.ie/media/5/8/1/4966185/0e4f819d-922e-4262-9225-8bce476f64db_m.jpg";s:11:"OriginalUrl";s:103:"https://photos-a.propertyimages.ie/media/5/8/1/4966185/0e4f819d-922e-4262-9225-8bce476f64db_o-d3139.jpg";}i:17;a:4:{s:3:"Url";s:97:"https://photos-a.propertyimages.ie/media/5/8/1/4966185/0b8dd0a3-7b2c-45ca-b1dd-f04d607e869a_x.jpg";s:8:"ThumbUrl";s:97:"https://photos-a.propertyimages.ie/media/5/8/1/4966185/0b8dd0a3-7b2c-45ca-b1dd-f04d607e869a_t.jpg";s:9:"MediumUrl";s:97:"https://photos-a.propertyimages.ie/media/5/8/1/4966185/0b8dd0a3-7b2c-45ca-b1dd-f04d607e869a_m.jpg";s:11:"OriginalUrl";s:103:"https://photos-a.propertyimages.ie/media/5/8/1/4966185/0b8dd0a3-7b2c-45ca-b1dd-f04d607e869a_o-0a3e4.jpg";}i:18;a:4:{s:3:"Url";s:97:"https://photos-a.propertyimages.ie/media/5/8/1/4966185/17d1e37b-3122-40df-bc84-c719c90505f0_x.jpg";s:8:"ThumbUrl";s:97:"https://photos-a.propertyimages.ie/media/5/8/1/4966185/17d1e37b-3122-40df-bc84-c719c90505f0_t.jpg";s:9:"MediumUrl";s:97:"https://photos-a.propertyimages.ie/media/5/8/1/4966185/17d1e37b-3122-40df-bc84-c719c90505f0_m.jpg";s:11:"OriginalUrl";s:103:"https://photos-a.propertyimages.ie/media/5/8/1/4966185/17d1e37b-3122-40df-bc84-c719c90505f0_o-4e86f.jpg";}i:19;a:4:{s:3:"Url";s:97:"https://photos-a.propertyimages.ie/media/5/8/1/4966185/d0dd261d-015d-49fe-bbd5-079a416129b1_x.jpg";s:8:"ThumbUrl";s:97:"https://photos-a.propertyimages.ie/media/5/8/1/4966185/d0dd261d-015d-49fe-bbd5-079a416129b1_t.jpg";s:9:"MediumUrl";s:97:"https://photos-a.propertyimages.ie/media/5/8/1/4966185/d0dd261d-015d-49fe-bbd5-079a416129b1_m.jpg";s:11:"OriginalUrl";s:103:"https://photos-a.propertyimages.ie/media/5/8/1/4966185/d0dd261d-015d-49fe-bbd5-079a416129b1_o-93baf.jpg";}i:20;a:4:{s:3:"Url";s:97:"https://photos-a.propertyimages.ie/media/5/8/1/4966185/1703eb53-5486-4521-b204-50f5eb200b35_x.jpg";s:8:"ThumbUrl";s:97:"https://photos-a.propertyimages.ie/media/5/8/1/4966185/1703eb53-5486-4521-b204-50f5eb200b35_t.jpg";s:9:"MediumUrl";s:97:"https://photos-a.propertyimages.ie/media/5/8/1/4966185/1703eb53-5486-4521-b204-50f5eb200b35_m.jpg";s:11:"OriginalUrl";s:103:"https://photos-a.propertyimages.ie/media/5/8/1/4966185/1703eb53-5486-4521-b204-50f5eb200b35_o-d7c4f.jpg";}i:21;a:4:{s:3:"Url";s:97:"https://photos-a.propertyimages.ie/media/5/8/1/4966185/6007e4c1-9b63-4d07-a423-5303f44b184c_x.jpg";s:8:"ThumbUrl";s:97:"https://photos-a.propertyimages.ie/media/5/8/1/4966185/6007e4c1-9b63-4d07-a423-5303f44b184c_t.jpg";s:9:"MediumUrl";s:97:"https://photos-a.propertyimages.ie/media/5/8/1/4966185/6007e4c1-9b63-4d07-a423-5303f44b184c_m.jpg";s:11:"OriginalUrl";s:103:"https://photos-a.propertyimages.ie/media/5/8/1/4966185/6007e4c1-9b63-4d07-a423-5303f44b184c_o-8e3d3.jpg";}i:22;a:4:{s:3:"Url";s:97:"https://photos-a.propertyimages.ie/media/5/8/1/4966185/7d6b6080-a95e-4f94-a216-5843330f27cf_x.jpg";s:8:"ThumbUrl";s:97:"https://photos-a.propertyimages.ie/media/5/8/1/4966185/7d6b6080-a95e-4f94-a216-5843330f27cf_t.jpg";s:9:"MediumUrl";s:97:"https://photos-a.propertyimages.ie/media/5/8/1/4966185/7d6b6080-a95e-4f94-a216-5843330f27cf_m.jpg";s:11:"OriginalUrl";s:103:"https://photos-a.propertyimages.ie/media/5/8/1/4966185/7d6b6080-a95e-4f94-a216-5843330f27cf_o-8953a.jpg";}i:23;a:4:{s:3:"Url";s:97:"https://photos-a.propertyimages.ie/media/5/8/1/4966185/cbeac1c8-ebcd-4752-9eed-40baa6240977_x.jpg";s:8:"ThumbUrl";s:97:"https://photos-a.propertyimages.ie/media/5/8/1/4966185/cbeac1c8-ebcd-4752-9eed-40baa6240977_t.jpg";s:9:"MediumUrl";s:97:"https://photos-a.propertyimages.ie/media/5/8/1/4966185/cbeac1c8-ebcd-4752-9eed-40baa6240977_m.jpg";s:11:"OriginalUrl";s:103:"https://photos-a.propertyimages.ie/media/5/8/1/4966185/cbeac1c8-ebcd-4752-9eed-40baa6240977_o-6e52e.jpg";}i:24;a:4:{s:3:"Url";s:97:"https://photos-a.propertyimages.ie/media/5/8/1/4966185/ad0d2099-7921-4100-807e-918febd00ce2_x.jpg";s:8:"ThumbUrl";s:97:"https://photos-a.propertyimages.ie/media/5/8/1/4966185/ad0d2099-7921-4100-807e-918febd00ce2_t.jpg";s:9:"MediumUrl";s:97:"https://photos-a.propertyimages.ie/media/5/8/1/4966185/ad0d2099-7921-4100-807e-918febd00ce2_m.jpg";s:11:"OriginalUrl";s:103:"https://photos-a.propertyimages.ie/media/5/8/1/4966185/ad0d2099-7921-4100-807e-918febd00ce2_o-bed4a.jpg";}i:25;a:4:{s:3:"Url";s:97:"https://photos-a.propertyimages.ie/media/5/8/1/4966185/3a855499-e56b-41cb-97d3-6deeefd59ed0_x.jpg";s:8:"ThumbUrl";s:97:"https://photos-a.propertyimages.ie/media/5/8/1/4966185/3a855499-e56b-41cb-97d3-6deeefd59ed0_t.jpg";s:9:"MediumUrl";s:97:"https://photos-a.propertyimages.ie/media/5/8/1/4966185/3a855499-e56b-41cb-97d3-6deeefd59ed0_m.jpg";s:11:"OriginalUrl";s:103:"https://photos-a.propertyimages.ie/media/5/8/1/4966185/3a855499-e56b-41cb-97d3-6deeefd59ed0_o-2609f.jpg";}i:26;a:4:{s:3:"Url";s:97:"https://photos-a.propertyimages.ie/media/5/8/1/4966185/dc63f667-8708-4cab-ba8e-cfc01e7ade56_x.jpg";s:8:"ThumbUrl";s:97:"https://photos-a.propertyimages.ie/media/5/8/1/4966185/dc63f667-8708-4cab-ba8e-cfc01e7ade56_t.jpg";s:9:"MediumUrl";s:97:"https://photos-a.propertyimages.ie/media/5/8/1/4966185/dc63f667-8708-4cab-ba8e-cfc01e7ade56_m.jpg";s:11:"OriginalUrl";s:103:"https://photos-a.propertyimages.ie/media/5/8/1/4966185/dc63f667-8708-4cab-ba8e-cfc01e7ade56_o-2af22.jpg";}}s:11:"BrochureMap";a:2:{s:9:"longitude";d:-6.3901465831894;s:8:"latitude";d:53.4953977087757;}s:10:"CustomData";a:3:{s:12:"HidePostCode";b:0;s:18:"RelatedPropertyIDs";a:0:{}s:16:"IsMyHomePassport";b:0;}s:10:"PhotoCount";i:27;s:4:"Pdfs";a:0:{}s:10:"FloorPlans";a:0:{}s:5:"Vimeo";a:0:{}s:10:"BrightCove";a:0:{}s:7:"YouTube";a:0:{}s:13:"YouTubeRotate";a:0:{}s:10:"Matterport";a:0:{}s:17:"VirtualTourEyeSpy";a:0:{}s:16:"VirtualTourKuula";a:0:{}s:7:"Viewett";a:0:{}s:8:"VideoUrl";a:0:{}s:16:"GroupPhoneNumber";s:0:"";s:9:"GroupName";s:0:"";s:12:"GroupAddress";s:0:"";s:22:"GroupUrlSlugIdentifier";s:0:"";s:5:"IsNew";b:0;s:12:"IsSaleAgreed";b:0;s:12:"GroupLogoUrl";s:61:"https://photos-a.propertyimages.ie/groups/2/2/6/5622/logo.jpg";s:8:"GroupUrl";s:0:"";s:15:"IsPremiumPlusAd";b:0;s:14:"IsBrandBooster";b:0;s:11:"IsFavourite";b:0;s:9:"HasVideos";b:0;s:2:"id";i:4966185;s:21:"PriceChangeIsIncrease";b:0;s:13:"PropertyClass";s:18:"ResidentialForSale";s:20:"PropertyClassUrlSlug";s:11:"residential";s:14:"PropertyStatus";s:7:"ForSale";s:17:"SeoDisplayAddress";s:53:"2-hickeys-cove-hickeys-lane-baltrasna-ashbourne-meath";s:11:"BrochureUrl";s:83:"/residential/brochure/2-hickeys-cove-hickeys-lane-baltrasna-ashbourne-meath/4966185";s:6:"SeoUrl";s:83:"/residential/brochure/2-hickeys-cove-hickeys-lane-baltrasna-ashbourne-meath/4966185";s:12:"MainPhotoWeb";s:97:"https://photos-a.propertyimages.ie/media/5/8/1/4966185/dad0471e-d8a9-45d9-834b-a30ac8833a52_x.jpg";s:11:"TravelTimes";a:0:{}s:5:"Leads";i:0;s:5:"Views";i:0;s:18:"AdditionalLogoUrls";a:0:{}} grimes_PropertyType : Detached House
Enquire About
2 hickeys cove hickeys lane baltrasna ashbourne meath